在生产中的应用举例随着工业生产的日益发展,在各工业生产部门的自动化系统中,电磁振动给科机获得广泛的应用。电磁振动给料机给料量的控制方法分为手动和自动控制两类,其中自动控制又可分为间断定量给料、连续定量给料和连续调节定量给料。
在纯氧顶吹转炉炼钢中的应用在纯氧顶吹转炉炼钢的配料系统中,用电磁振动给料机来实现间断定量给料。图9—l是某钢厂纯氧顶吹转炉炼钢自动定:


量配料系统图。该间断定量配科装置可分为手动、自动和事故三种操作方式。系统的称量是由装设在称量斗下面的负荷传感器来完成。根据转炉在炼钢过程中,对配料的不同需要量,可通过自动(电子计算机)或手动,把给定器调节到所需的给定料量位置上。当称量斗的重量与给定料量有一差值时,系统启动或关闭电磁振动给料机以完成定量给科工序。此种定量配料系统除在转炉炼钢上应用外,目前在高炉上也开始用它宋代替笨重的筒型给料器和称量车的配料系统。
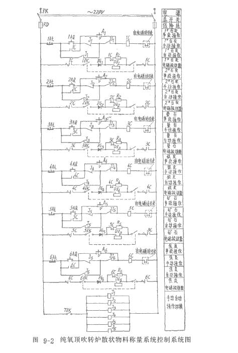
其电气控制原理图如图9—2所示。电磁振动给料机由单相半波整流供电。在加料过程中由于给料速度不需调节,所以六台电磁振动给料机并接在电源上。由接触器控制其加科顺序。
目前国内生产的自动称量秤,虽然种类很多,但其工艺配置大多如图9—3所示。工作原理:该设名采用电磁振动给料机U满足加料和卸料的自动称量要求。物科加入称斗后.

根据杠杆平衡原理,物料的重量通过杠杆传递到读数尺上,读数尺带有上下两触点,通过接触标分别接通上下两触点,实现自动称量。重锤可以随称量值人工给定,以达到不同的自动称量值。该设备特设有附加重锤装置,当称量接近给定时,附加重锤抬起,实现慢速加科。操作分自动、半自动、手动控制。这种定量自动称量装置可与包装机配合实现包装工序的自动化。其吨气原理图如图9—4所示。自动秤中的电磁振动给科机由半波整流供电,给料速度通过改变可控硅整流器的输出电压来调节,可控硅触发回路使用了较简单的阻容移相桥式,当改变电阻胎时,即可调节给料速度,这样可以得到尽量准确的结果。(本文由正航仪器编辑)http://www.zhsysb.cn